В Великом Новгороде найден фрагмент церкви XIV века
В Великом Новгороде найден фрагмент церкви XIV века
Археологи обнаружили в историческом центре Великого Новгорода фрагмент древней улицы и часть стены каменной церкви Иоанна Крестителя, построенной в XIV веке. Находка поможет в поисках Немецкого двора — средневекового официального представительства ганзейских купцов, точное местонахождение строений которого на сегодняшний день не известно. Открытие совершено совместной экспедицией Института археологии РАН, Новгородского государственного музея-заповедника и Новгородского университета имени Ярослава Мудрого при содействии мэра и Администрации Великого Новгорода во время проведения археологической разведки на территории будущего историко-археологического квартала, который создается по инициативе Академии наук и Новгородского музея-заповедника.
«Нам удалось одним небольшим шурфом попасть на ту часть восточной стены, к которой примыкает выступающее полукружие апсиды. Особенности строительного раствора, размер кирпича и техника строительства не оставляют сомнения, что перед нами остатки строения XIV века. Возможно, раскопками будущего года получится открыть северо-западный угол и часть апсиды церкви Иоанна Крестителя», — сказал заместитель директора Института археологии РАН Петр Гайдуков.
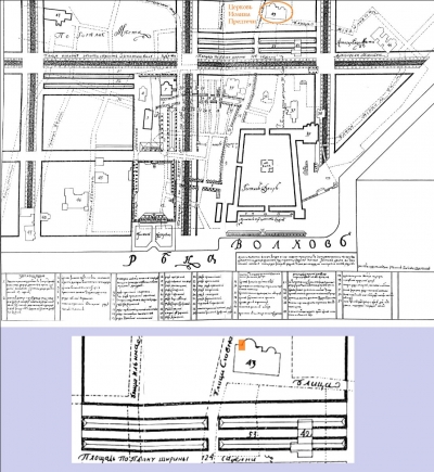
![]() |
| Фрагмент плана 1723 года Григория Охлопкова с церковью Иоанна Крестителя и выкопировка с плана с обозначением раскрытого раскопками фрагмента церкви Иоанна Крестителя |
Церковь Иоанна Крестителя, или Иоанна Предтечи, неоднократно упоминается в новгородских летописях. Из письменных источников известно, что в XII-XIII веке церковь была деревянной, а в 1359 году боярин Лазута поставил церковь каменную: «Того же лета постави Лазута святыи Иоанъ церковь камену, у Неметцскаго двора». Церковь простояла до второй половины XVIII века, но во время церковных реформ Екатерины II она лишилась государственной поддержки и была закрыта. Постепенно она ветшала, разрушалась и, видимо, к концу XVIII века была разобрана. На ее месте был построен квартал с новой перепланировкой, и в XIX — XX веке уже ничто не напоминало о ее существовании.
Упоминания церкви Иоанна Крестителя в летописях и писцовых книгах Новгорода часто связаны с Немецким двором — местом, где останавливались приезжавшие в Новгород купцы из Ганзы. Торговый устав (скра) предписывал им останавливаться на территории Немецкого двора, регламентировал условия торговли и хранения товаров. В XVI веке после присоединения Новгорода к Москве и ограничения полноценных торговых отношений с Новгородом Немецкий двор прекратил свое существование.
На сегодняшний день известно примерное местонахождение Немецкого двора: по писцовым книгам конца XVI века установлено, что он находился к востоку от Ярославова Дворища между улицами Ильиной и Славной, в районе современной Большой Московской улицы. Этот участок археологически изучен мало, и пока археологи не обнаружили следов строений, относящихся к Немецкому двору. Известно лишь, что на его территории была церковь Святого Петра, и что эта церковь находилась не очень далеко от церкви Иоанна Крестителя: так, в «Повести о новгородской ропате» (или «Повесть о посаднике Добрыне»), описывается история переноса деревянного храма Иоанна Крестителя (Предтечи): деревянная церковь была перенесена, на ее месте была построена каменная «ропата», или «латинская церковь», что повлекло божью кару и вызвало гнев новгородцев. Также в повести упоминается, что после строительства «ропаты» немцы пригласили новгородских иконописцев для росписи внешней части храма, но фреска и грунт на ней были смыты сильным дождем сразу же после окончания работы: «И якоже совръшиша н?мцы ропату свою, и наяша иконников новгородцких и повел?ша имъ написати образ Спасовъ на ропатнемъ углу, на полуденн?й стран? в верху, на прелесть христианом и на соблазнъ. И якоже написаша иконописцы образ Спасовъ на ропат?, а архиепископа не доложа, и открыша покровъ, и абие въскор? томъ час? прииде туча з дождемъ и з градом, и выбило градом и м?сто то, идеже былъ написан образ Спасовъ, и левкас смыло дождемъ, якоже не явитися ни знамению писаниа».
«Это очень важный момент: за бурей, смывающей фреску, наблюдают новгородцы, стоящие возле церкви Иоанна Предтечи и смотрящие на южную дверь немецкой церкви. Получается, что обе церкви стояли очень близко. Поэтому обнаружение церкви Иоанна Крестителя поможет понять, где находились строения Немецкого двора. Также близость этих церквей подтверждается немецкими документами», — отметил руководитель Новгородского архитектурно-археологического отряда ИА РАН Владимир Седов.
Во время раскопок 90-х годов ХХ века под руководством Петра Гайдукова был найден южный придел церкви Иоанна Крестителя, пристроенный в XVI веке.
«Мы знали, что в XVII веке рядом с церковью Иоанна Крестителя был поставлен придел Иконы Владимирской Божье матери так, что южная стена поздней церкви примыкала к северной стене церкви XIV веке. С учетом этих данных и понимания примерных размеров церкви XIV века был заложен небольшой шурф, который „попал в десятку“. Теперь, имея эти две точки — первую, нашей двадцатилетней давности, и сегодняшнюю, мы сможем привязать к плану квартала примерный контур церкви», — пояснил Петр Гайдуков.
![]() |
| Конструкции церкви Иоанна Крестителя. Раскопки 2020 года |
Конструкции церкви Иоанна Крестителя. Раскопки 2020 года




Посетители, находящиеся в группе Гости, не могут оставлять комментарии к данной публикации.